不動産 
ハイツ八汐(ハイツヤシオ)【退去予定:103・107】
| 交通 | JR磐越西線 会津若松 徒歩20分 | ||
|---|---|---|---|
| 所在地 | 会津若松市一箕町大字亀賀字郷之原245-1 | ||
| 賃料 | 4.5万円 | ||
| 敷金 / 保証金 | 4.5万円 | 礼金 | - |
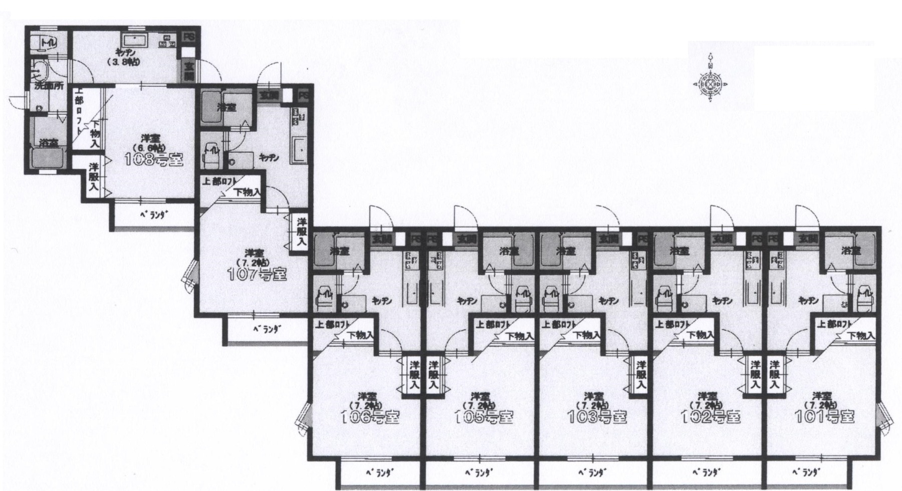
| 間取り | 1K | 専有面積 | 26.50㎡ |
| 物件種目 | 貸アパート | 築年月 | 1999年03月 |
退去後に修繕工事とハウスクリーニングを行ってからご入居可能となります。
ハウスクリーニング以外の退去工事は、実際に退去した後でないと必要な修繕箇所がわかりかねるため、万が一ご希望の入居日に間に合わない工事があった場合、恐れ入りますが、ご入居後に日程を調整させて頂いて修繕させて頂けますようお願いいたします。
入居日につきましては、ご相談ください。
また、現在入居中のお部屋は、内見することが出来ませんので、
写真や図面等を掲載しておりますのでご参考頂ければ幸いです。
※退去予定日は、確定ではございません、2月末頃・3月初旬退去予定とかかれているお部屋が、例えば3月中旬や3月末頃にずれ込む可能性も、現時点ではまだございます。
例年、卒業式頃まで住まわれて、その後引越をされる方も多くいらっしゃいます。
クリーニング等も込み合いますため、入居可能となるのが3月末頃~4月初めになることも多い傾向にございます。
退去日が確定しましたら、入居可能日もお伝えできますので、随時掲載してまいります。
※お部屋の全体的なつくりは同じですが、各お部屋によって設備の年数等異なるものがある場合がございます。
※間取りも下記図面と反転しているお部屋がある場合がございます。
(写真や図面と現況が異なる場合は、現況優先とします)
▶周辺MAP (←こちらで場所をご確認ください)
<2026/1/21現在>
■退去予定…1階 103号室(退去予定:2月末~3月末頃)
■退去予定…1階 107号室(退去予定:3月末頃)


■360度バーチャルツアー■
・画像内でカーソルをクリックし動かして360度回転。
・表示されている矢印をクリックすると次の画像へ。

物件詳細
| 交通 | JR磐越西線 会津若松 徒歩20分 | 所在地 | 会津若松市一箕町大字亀賀字郷之原245-1 |
|---|---|---|---|
| 物件種目 | 貸アパート | 賃料 | 4.5万円 |
| 管理費等 | - | 敷金 / 保証金 | 4.5万円 |
| 礼金 | - | 敷引 | - |
| 保証金償却 | - | その他一時金 | 仲介手数料49,500円、カードキー設定料(鍵1枚込)5,500円、カードキー1枚追加の場合1枚あたり2,200円 |
| 保険等 | 要 借家人賠償責任保険(参考:2年間 保険料15,000円) | 維持費等 | - |
| 建物名・部屋番号 | ハイツ八汐(ハイツヤシオ) | 備考 | |
| バス・トイレ | 風呂・トイレ別 | キッチン | キッチン有(ガスコンロ台は入居者準備) |
| 設備・サービス | 収納スペース、クローゼット、シューズボックス、照明器具、室内洗濯機置場、フローリング、エアコン、カードキー | その他 | 都市ガス |
| 間取り | 1K | 専有面積 | 26.50㎡ |
| 階建 / 階 | 2階建 | 建物構造 | 木造 |
| 総戸数 | 14戸 | 築年月 | 1999年03月 |
| 駐車場 | 有(月額3,000円。全室分のスペースはございません。空きがある場合は契約してお借りいただくことが可能です) | バイク置き場 | |
| 駐輪場 | 有り | ペット | 不可 |
| 契約期間 | 2年 | 現況 | 退去予定…103号室、107号室 |
| 条件等 | 喫煙不可。 賃貸保証等:加入要 【社会人の場合:初回保証料…月額賃料の80%。口座振替料…月額330円(毎月口座引落し)】 【学生プラン:初回保証料…0円。月額600円(毎月口座引落しの口座振替料含む)。連帯保証人も必要です】 | 入居日 | 未定 |
| 取引態様 | 仲介 | 更新料 | 無し |
| 物件番号 | 8 | 情報公開日 |












